Select the floor plan that fits your event style and guest count

Brentsville Hall setup for a wedding ceremony

Browse our floor plan options

Hover over the image or click to show the guest counts and event amenities (projector screen, bars, DJ, bands, etc). These are just a few of the options that we offer - if you have something in mind just let us know!

Floor Plan Gallery

Click an image to view larger version with details

Plenty of room for a dance floor, bar, and a cocktail hour on the patio.

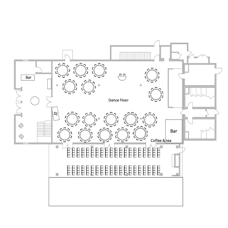
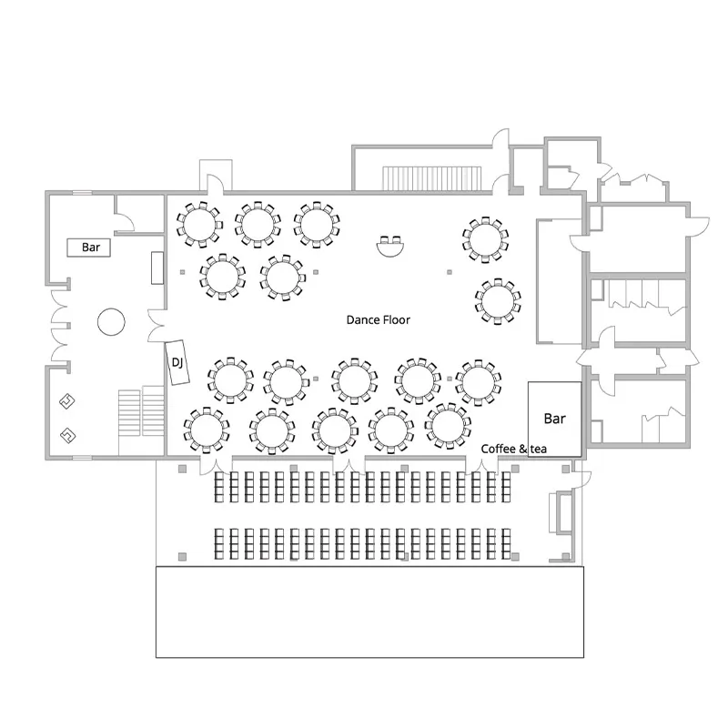
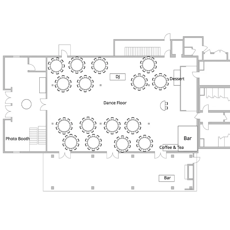
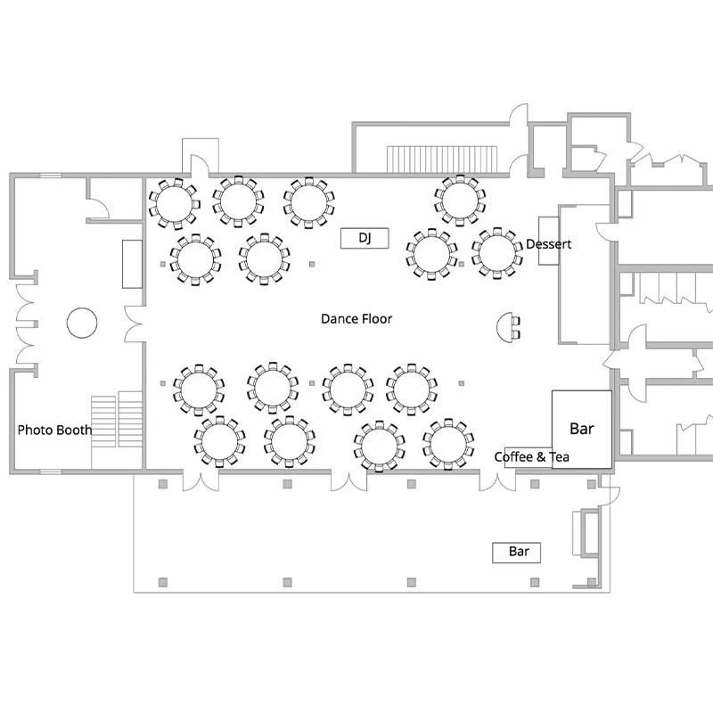
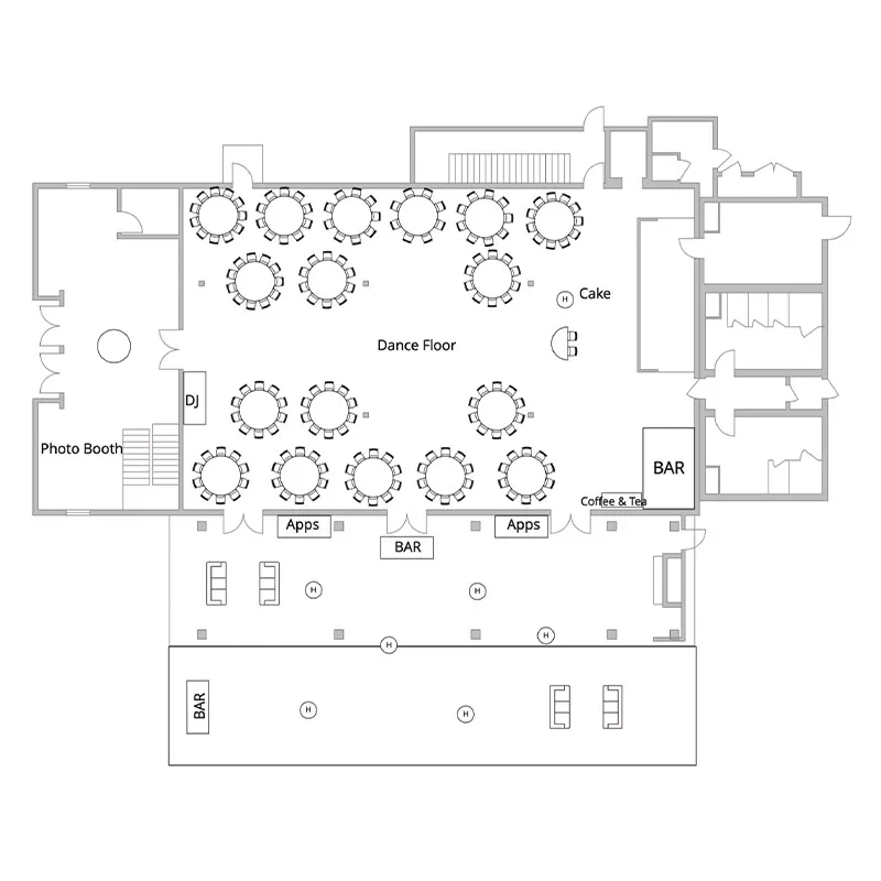
170 guest wedding, seated dinner

Plenty of room for a dance floor, bar, and a cocktail hour on the patio.

170 guests with seated dinner inside for reception, outside for ceremony on the patio by the fireplace

170 guests with ceremony and reception

170 guests with seated dinner inside for reception, outside for ceremony on the patio by the fireplace

DJ, dance floor, and bar areas

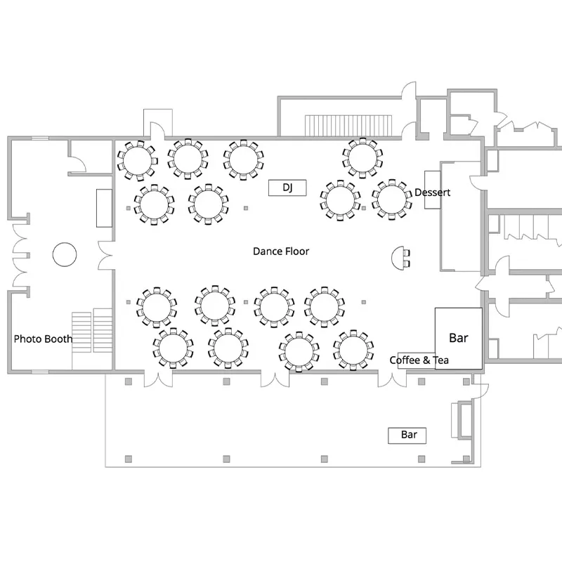
160 guests for plated dinner

DJ, dance floor, and bar areas

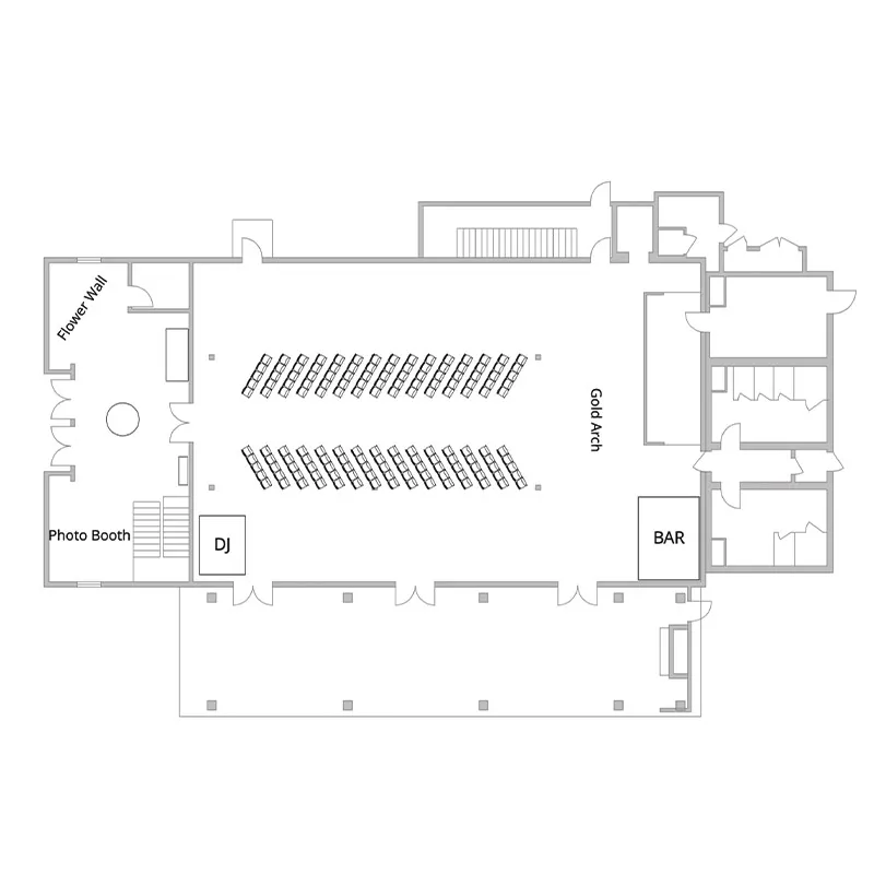
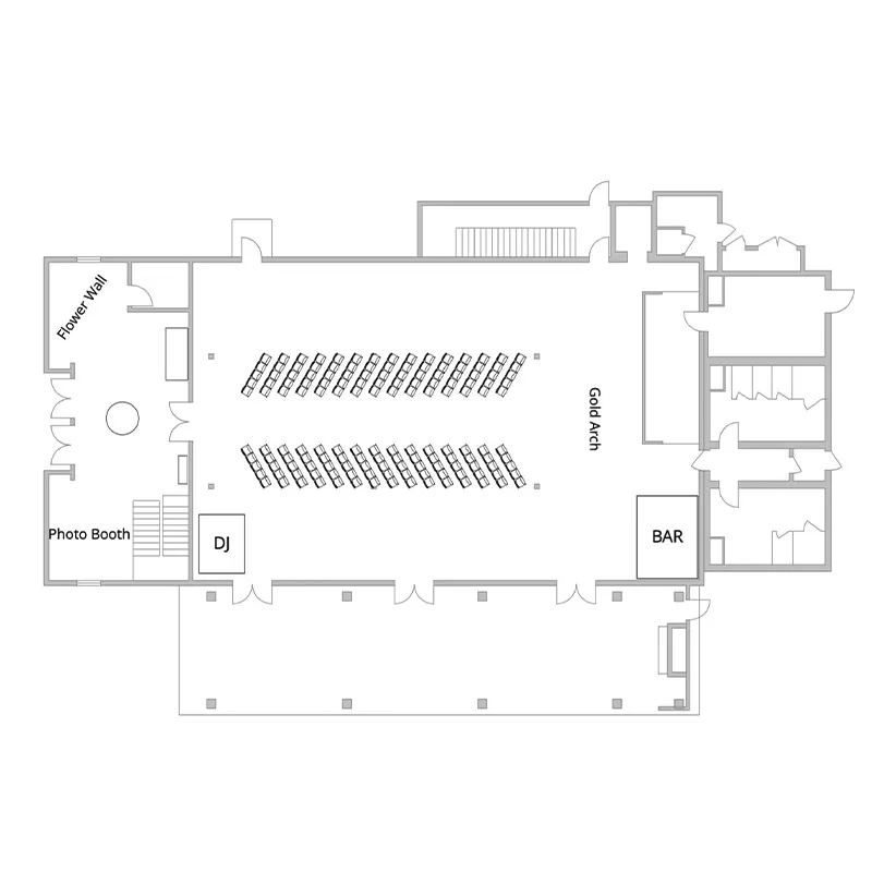
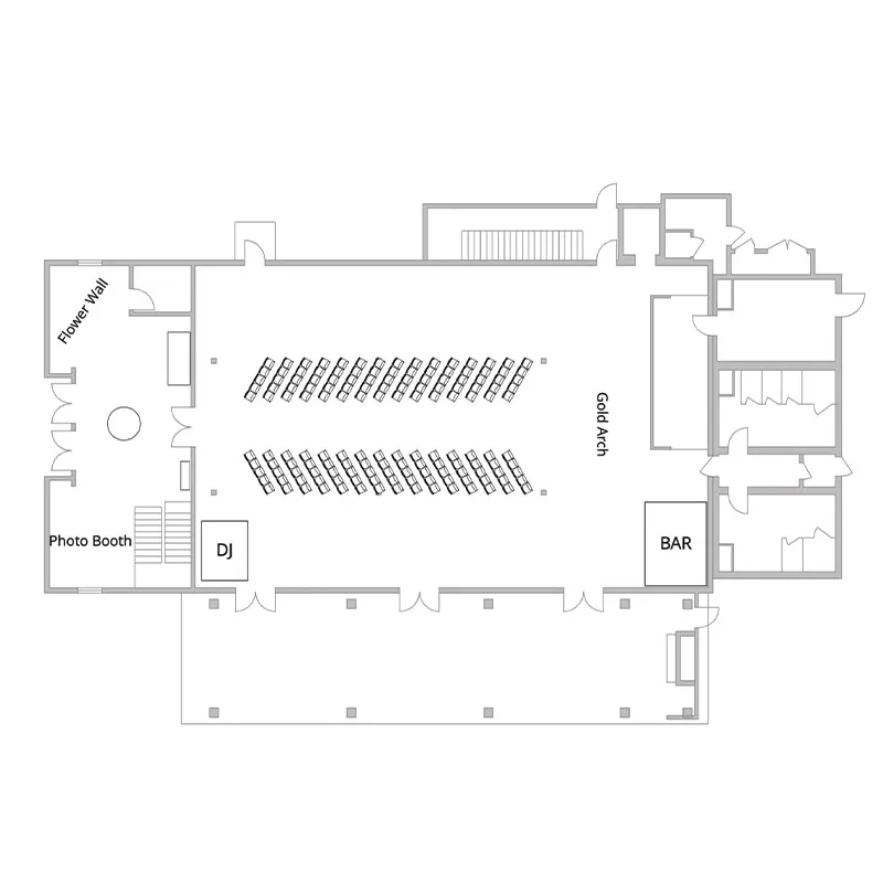
150 guest floor plan for a wedding ceremony indoors in Manassas, VA

150 guests, indoor ceremony

150 guest floor plan for a wedding ceremony indoors in Manassas, VA

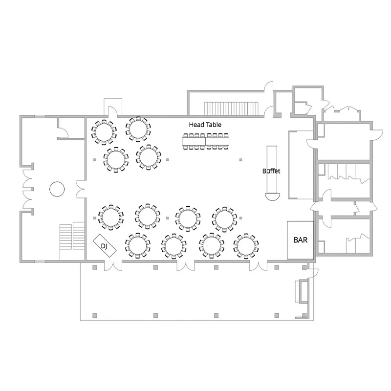
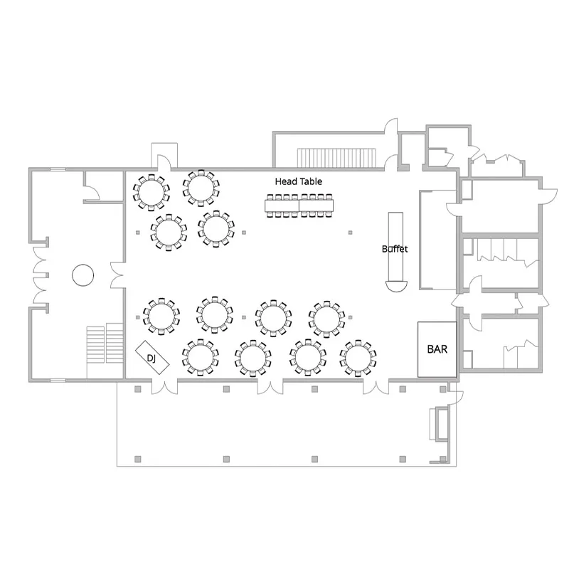
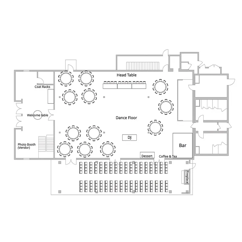
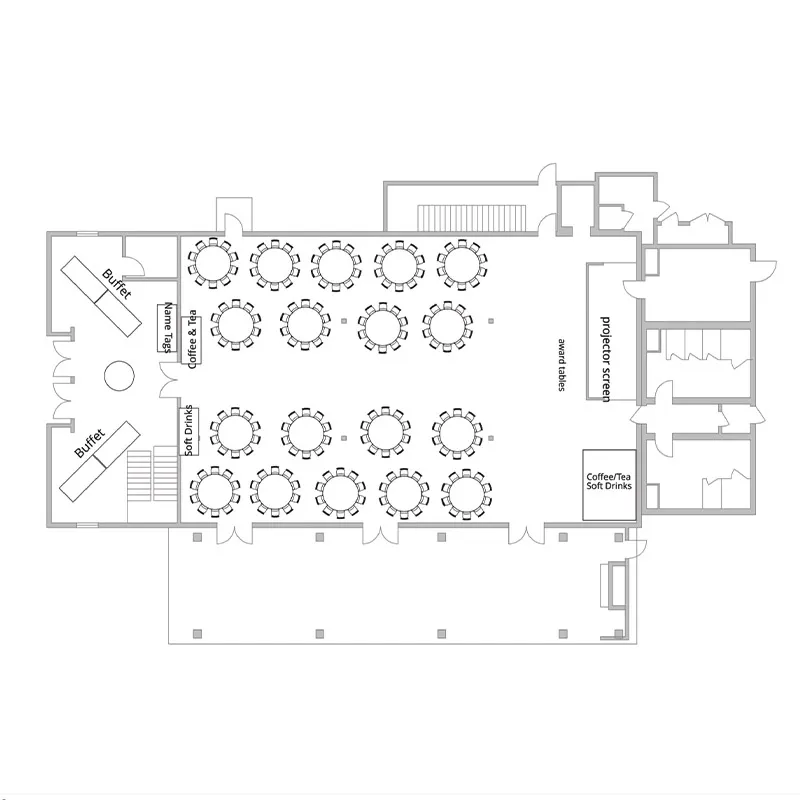
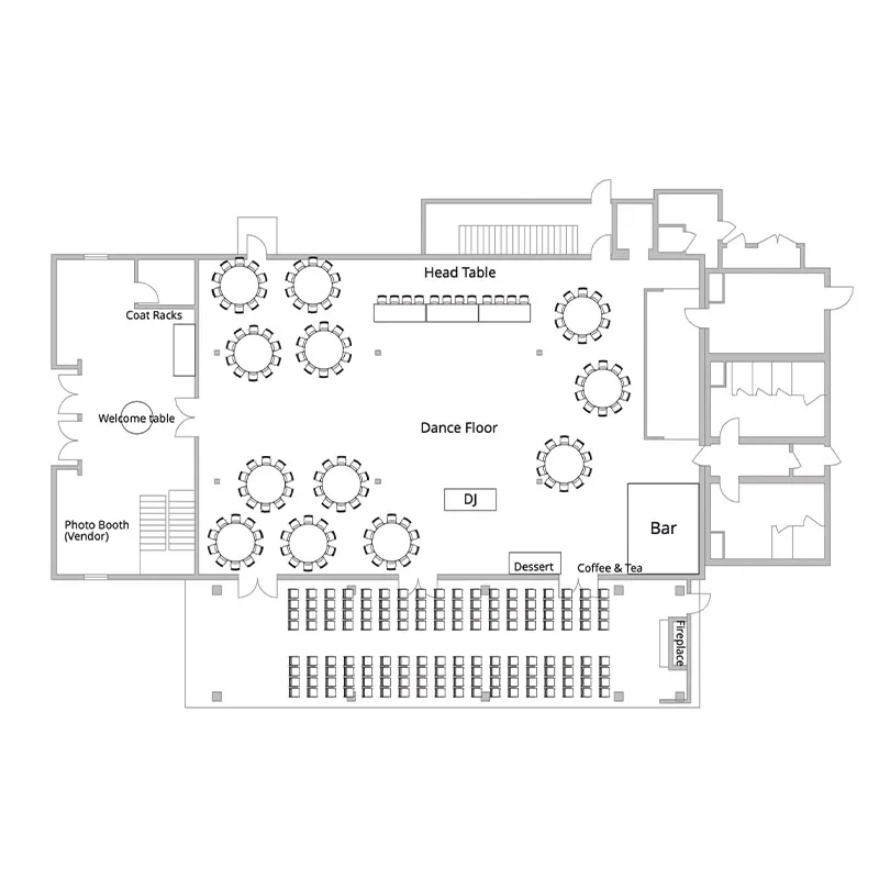
135 guests for a seated dinner with a head table

Floor plan for 135 guests

135 guests for a seated dinner with a head table

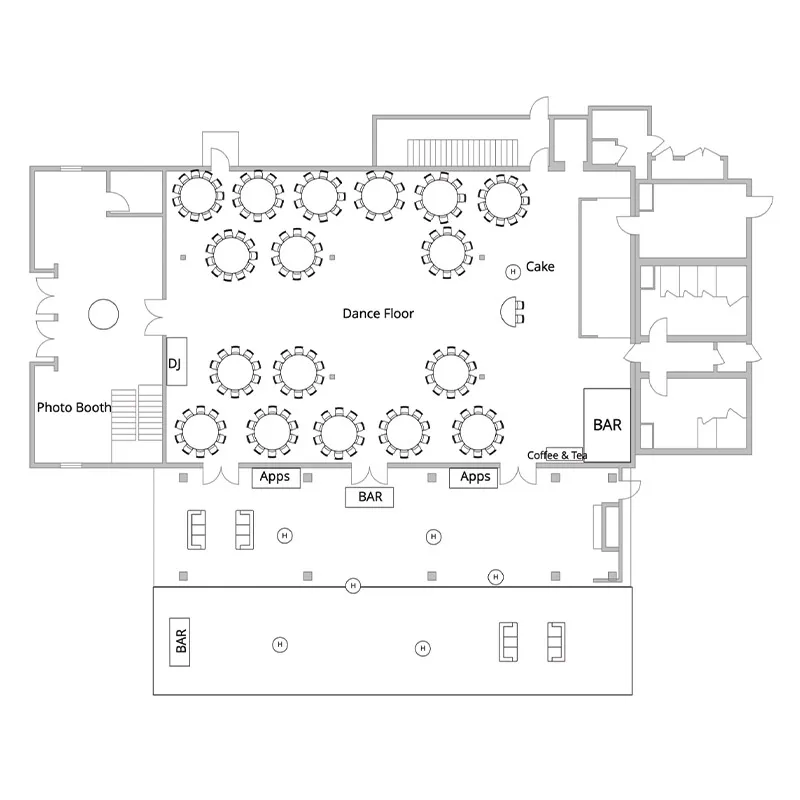
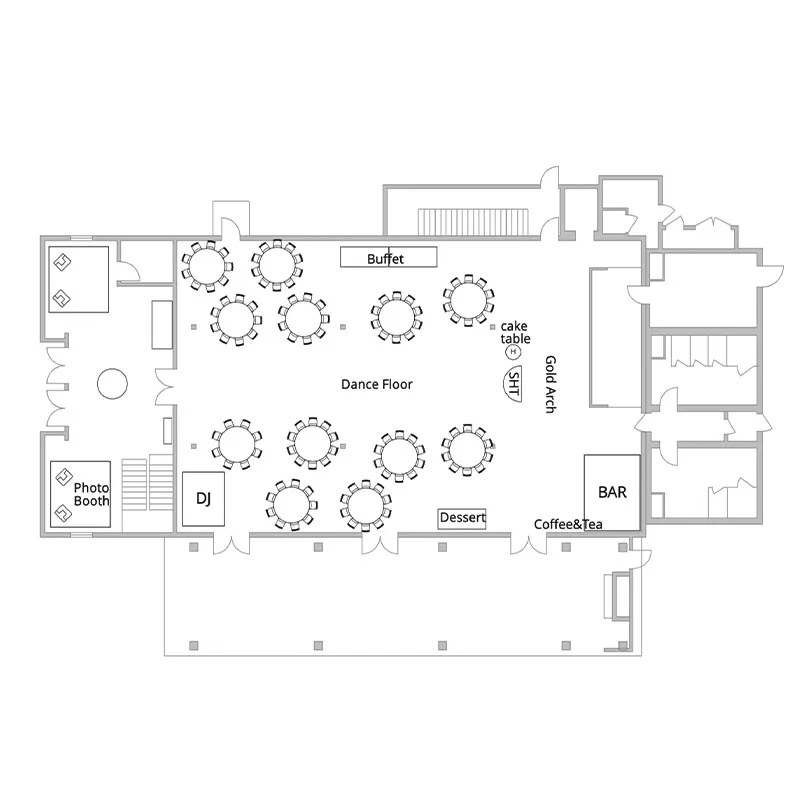
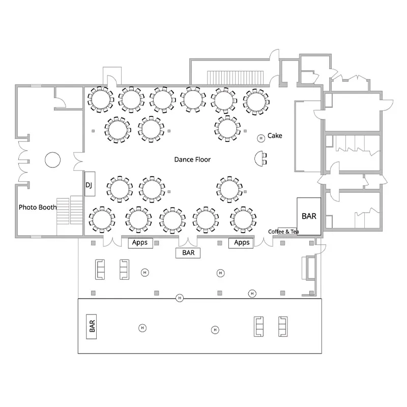
80-100 person reception with bar, photo booth, DJ, and buffet tables

80-100 person reception

80-100 person reception with bar, photo booth, DJ, and buffet tables

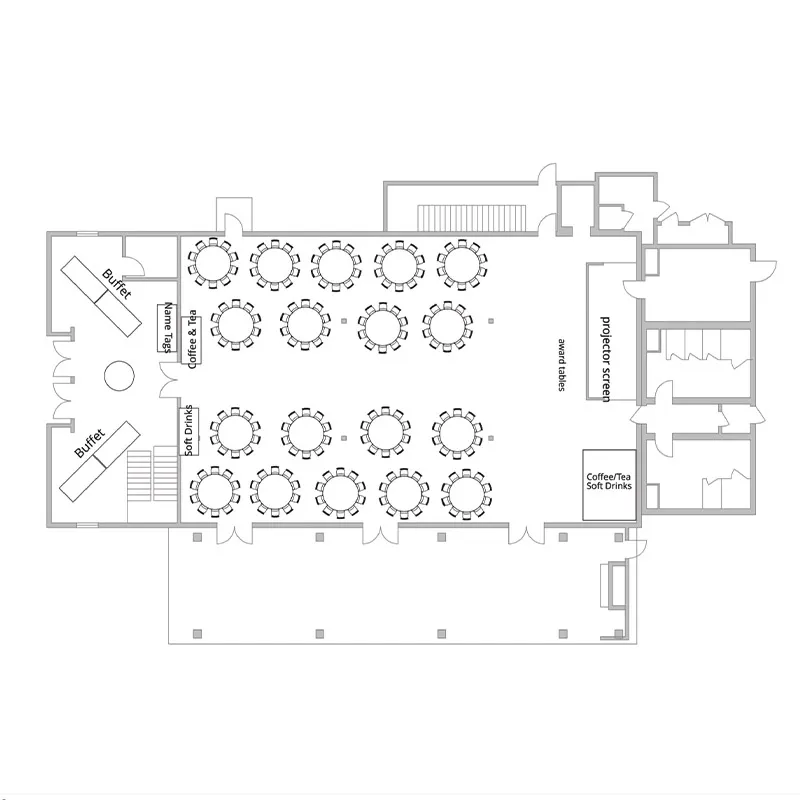
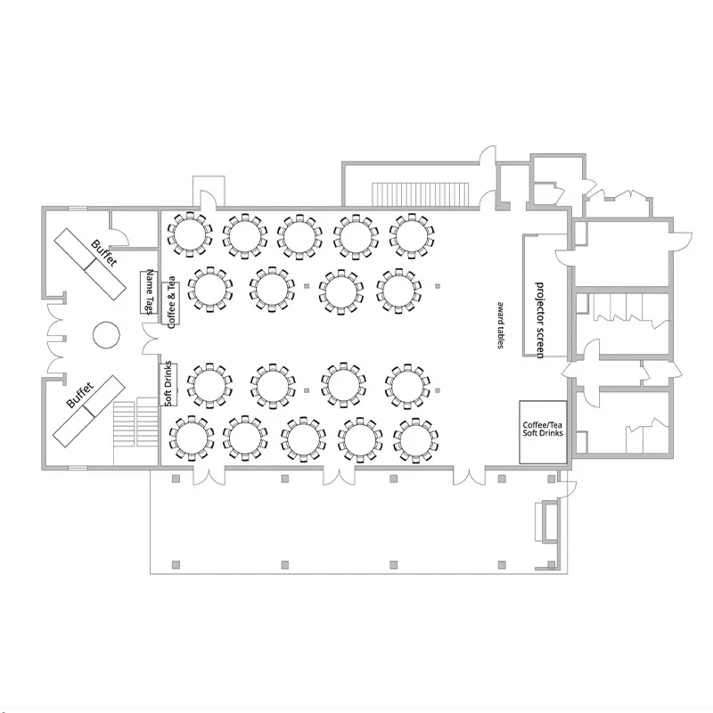
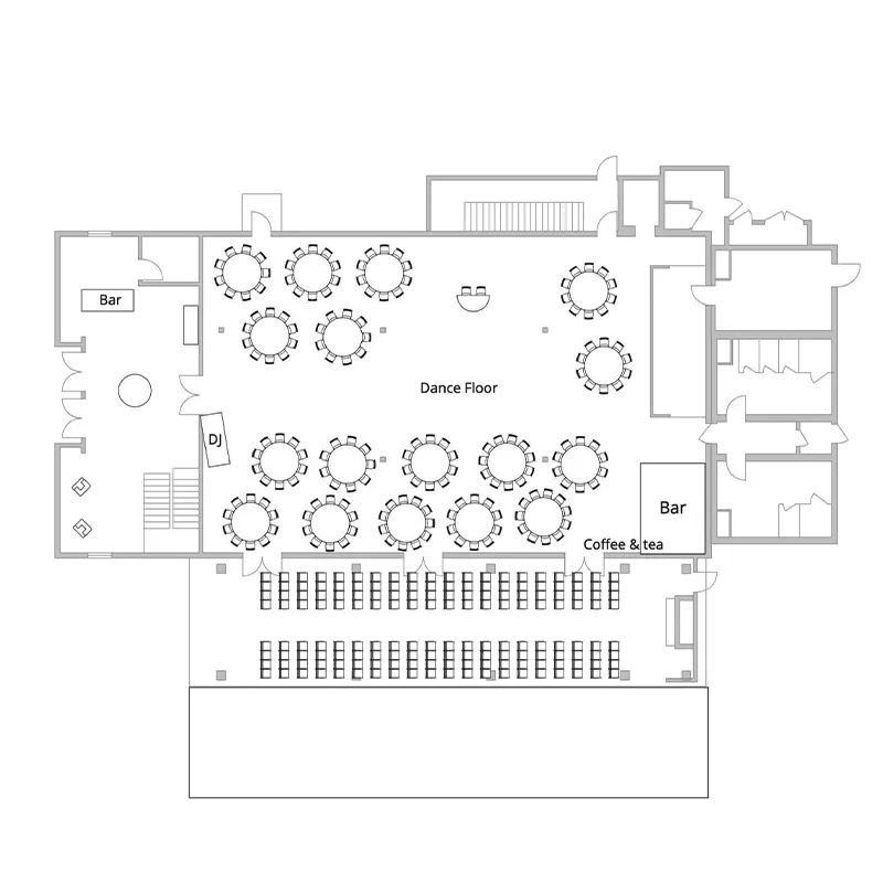
<p>180 guest floor plan with buffet, large projector screen, patio access</p>

180 guests with buffet

180 guest floor plan with buffet, large projector screen, patio access

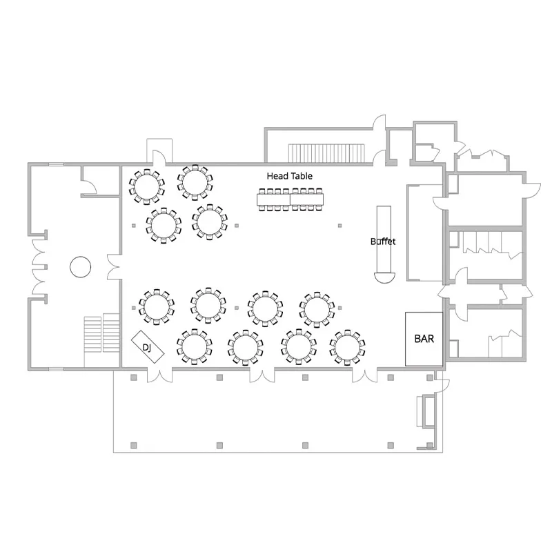
<p>140 guest floor plan with buffet, head table, and bar</p>

140 guest floor plan

140 guest floor plan with buffet, head table, and bar

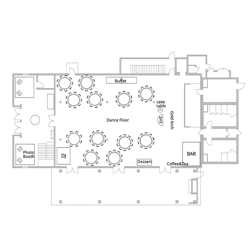
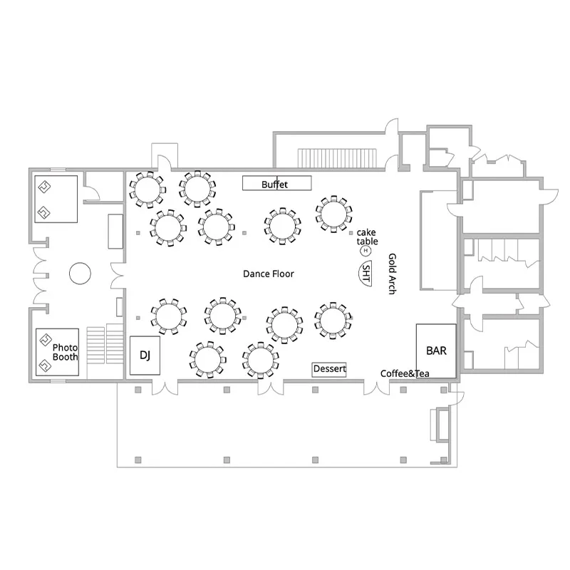
<p>120 person reception with buffet, DJ, and photo booth</p>

120 person reception with buffet

120 person reception with buffet, DJ, and photo booth